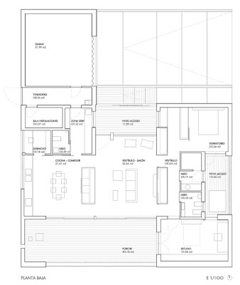
Una casa de diseño construida en la parroquia de Aldea de Arriba, en Bergondo (A Coruña), por el arquitecto Antonio Pernas Varela, ganadora la edición 2011 de los Premios Juana de Vega de Arquitectura, entregados por la Fundación del mismo nombre.
Destaca por su compacto diseño, que añade calidad visual al espacio próximo y aplaudió también su distribución, bien organizada con alternativas de movilidad exterior e interior, y buen criterio en el empleo de materiales.
 







 
No hay comentarios:
Publicar un comentario